Avis plan cuisine
Sujet commencé par : TalikaQueen - Il y a 20 réponses à ce sujet, dernière réponse par TalikaQueenPar TalikaQueen : le 02/07/17 à 14:39:02
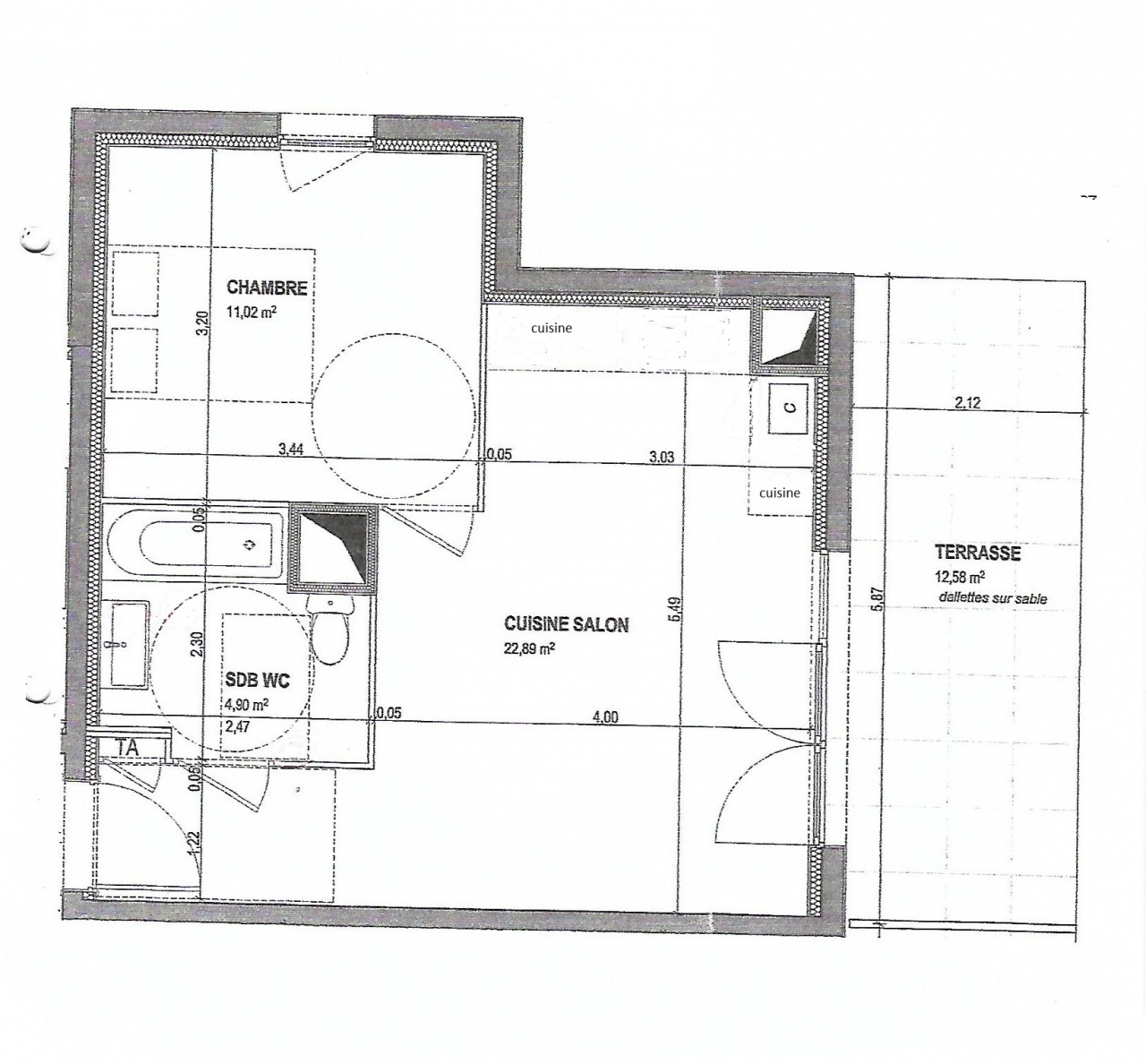
| Dire merci | Bonjour, Je suis à la recherche d'avis concernant le plan de ma futur cuisine dans mon futur appartement . J'ai trois idées en tête mais je suis incapable de choisir , ni même d'avoir d'autres idées. Pourriez vous me donner un coup de main? Je vous met le plan de l'appartement , petit 38.81 m2 Merci ![]() |
Messages 1 à 20, Page : 1
Par Pimpin : le 02/07/17 à 14:56:03
DéconnectéDire merci | Elle est bien comme sur le plan, moi je fermerai la cuisine |
Par Pimpin : le 02/07/17 à 14:57:16
DéconnectéDire merci | Elle est bien comme sur le plan, |
Par Pimpin : le 02/07/17 à 14:57:46
DéconnectéDire merci | Tu ne peux pas fermer car pas de fenêtre |
Par TalikaQueen : le 02/07/17 à 15:05:38
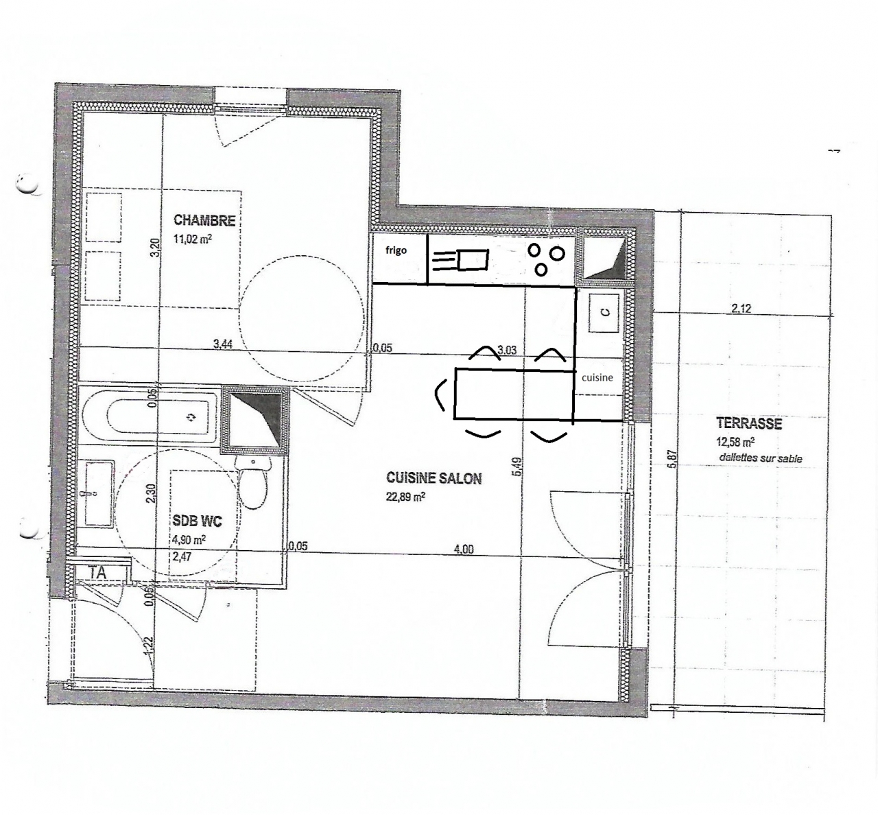
| Dire merci | Non je ne peux pas fermer la cuisine et surtout vu la taille de la pièce. D'autant qu'on veut une cuisine ouverte Voilà les trois idées que l'on a ![]() |
Par TalikaQueen : le 02/07/17 à 15:05:55
Par TalikaQueen : le 02/07/17 à 15:06:13
Par Pimpin : le 02/07/17 à 16:46:22
DéconnectéDire merci | Une préférence pour la troisieme |
Par sophieshop : le 02/07/17 à 17:34:06
| Dire merci | L'outil "plan de cuisine" du suédois est plutôt pas mal pour se faire une idée du rendu ![]() |
Par Manon2201 : le 02/07/17 à 17:37:58
| Dire merci | Moi j'aime bien le premier |
Par leeloye : le 02/07/17 à 19:45:15
| Dire merci | alors pr moi la 3 : non (mais je n'aime pas le principe de l'ilot central => je préfère un p'tit bar et une table dans la salle à manger extensible s'il faut... plutôt que l'ilot central qui prend plus de place) j'aurais dit 1 ou 2 : ... en y regardant de plus prêt... sur la 1 je trouve le côté de l'ouverture plus "naturel" (je ne trouve pas de terme adapté) mais sur la 2 : tu aurais gagne un "angle" (la place du frigo) ... et quand c'est "petit" ce n'est pas négligeable ! |
Par TalikaQueen : le 02/07/17 à 20:13:38
| Dire merci | leeloye Pour la 1 , je suis d'accord avec toi , c'est plus naturel ou intuitif mais le frigo contre la chambre , plusieurs personnes m'ont dit : pas top car la cloison est ultra mince et au'on risque d'être géné à cause du bruit. Pour la 2 ou la 3 , effectivement je gagne la place du frigo ce qui n'est pas négligeable et je gagne aussi en plan de travail. Donc on resterait sur la 2 ou la 3 qui me permet de gagner de l'espace de rangement et du plan de travail. Reste la question du "retour bar" en dur ou en amovible. Sur la 3, je suis d'accord que l’îlot c'est une perte de place , l'idée c'était un bar extensible. Mais ça voudrait dire qu'à chaque repas, on doit bouger la table si on ne veut pas manger face au mur. |
Par Manon2201 : le 02/07/17 à 20:26:12
| Dire merci | Pas bête pour le frigo, dans ce cas le n°2, d'expérience la table à déplacer à chaque fois ça va vite vous gonfler ! Si vous avez des voisins en dessous, ça risque de vite râler quand vous déplacer la table, ... |
Par TalikaQueen : le 02/07/17 à 21:23:53
| Dire merci | manon2201 Pas de voisin en dessous mais effectivement le risque que ça nous gonfle rapidement est très probable une autre idée c'est que dans la vie de tous les jours, on est que 2 et donc une table comme ça , ça peut être une idée : ![]() |
Par Plush : le 03/07/17 à 08:06:42
| Dire merci | La table escamotable, je trouve ça sympa dans l'idée, mais alors en pratique... faut penser qu'une table de cuisine, tu as quand même souvent des bricoles qui traînent dessus, et c'est bien pratique, je trouve. Sans parler, comme dit plus haut, que je pense que ça me soulerait vite de devoir déplier / replier ou déplacer ma table à chaque utilisation. Pour tes plans n°1-2, j'ai du mal à me rendre compte des dimensions, mais j'ai l'impression qu'il n'y a pas très large entre la table et les meubles de cuisine ? (surtout si tu comptes les chaises..) faut quand même pouvoir circuler dans ta cuisine sans buter contre une chaise à chaque pas ![]() Moi j'opterais pour le plan n°3, en mettant une toute petite table carrée qui s'allonge si besoin, mais en la laissant en place. |
Par vecchio : le 03/07/17 à 11:39:05
| Dire merci | Hello, J'aime bien le n°1 mais si tu préfères le n°2, je te déconseille juste l'évier collé sur la gauche. Décale le un tout petit peu sur la droite pour avoir un peu plus de place ou faire sécher de la vaisselle sur la gauche. |
Par TalikaQueen : le 03/07/17 à 12:31:47
| Dire merci | Merci à toutes et tous. Après discussion , le plan 1 nous fait perdre du plan de travail et surtout au vu de l épaisseur de la cloison entre la cuisine et la chambre , c'est pas la meilleure idée du monde de mettre le frigo contre la chambre . Donc ça serait plutôt le 2 ou le 3 . |
Par Luna74 : le 03/07/17 à 13:50:37
| Dire merci | Y a pas que le côté cuisine à voir, il y a aussi le coin salon ... vous savez comment vous allez installer tv et canapé? Avec un îlot, ça prend vite de la place...je t'en parle car on y a été confronté. On a un peu le même genre de pièce, on a fini avec une cuisine en L par manque de place côté salon, au moins on a pu tout caser. Un L à l'inverse de vous, comme sur ton plan 3, 2 colonnes (une pour frigo, l'autre pour four et rangements) + une porte pour cacher la chaudière (avec rangements dessous) et le plan de travail et 2 meubles au dessus des plaques. |
Par tyoc : le 03/07/17 à 14:47:19
| Dire merci | Sinon rester sur la 3 mais avec une table de cuisine avec rallonge. Le bar c'est bien mais quand tu reçois du monde c'est pas pratique et ça va faire le bazard avec le salon. Et comme c'est facilement bougeable, tu peux la coller contre le mur de la chambre quand vous n'êtes que 2. |
Par polache : le 03/07/17 à 20:48:33
| Dire merci | ![]() On a fait une sorte d'ilot mais sur le coté avec le plan qui déborde pour pouvoir manger. C'est top car on ne perd pas de place, on peut y manger facilement, grand plan de travail. |
Par TalikaQueen : le 04/07/17 à 02:46:28
| Dire merci | polache Je ne vois pas ta photo malheureusement :-( |
Page : 1
Pour préserver la qualité de ce forum, vous devez être membre pour participer à cette discussion..
Il y a actuellement (69 391) membres dans la communauté.
Devenez membre | Connectez vous


Déconnecté























